Άυξηση Βαθμού Απόδοσης Απασβεστοποίησης
Το έργο «Αύξηση Βαθμού Απόδοσης Απασβεστοποίησης - Ανάκτησης Κλασμάτων Βωξίτη» στην εγκατάσταση απασβεστοποίησης στο εργοστάσιο Αλουμίνας στον Αγ. Νικόλαο Βοιωτίας, εντάσσεται σε μια συνολικότερη επένδυση της ΜΥΤΙΛΗΝΑΙΟΣ ΑΕ που υλοποιείται στην εν λόγω βιομηχανία προκειμένου τη βελτίωση του βαθμού απόδοσης του εργοστασίου, την αύξηση της παραγωγικότητας και της διαχείρισης ενέργειας.

Πρόκειται για μια από τις αρχικές φάσεις της παραγωγικής διαδικασίας όπου ο βωξίτης διαχωρίζεται από ασβεστολιθικά κατάλοιπα που συνυπάρχουν στο μετάλλευμα από την εξόρυξη.
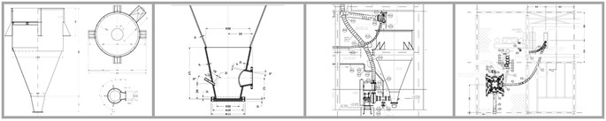
Το έργο αφορούσε την μελέτη και εγκατάσταση νέου μηχανολογικού εξοπλισμού, την διασύνδεση αυτού με υδραυλικά δίκτυα, την ανέγερση νέων μεταλλικών κατασκευών και την μελέτη βοηθητικών εγκαταστάσεων, μετρητικών διατάξεων κλπ.
Στη μελέτη συμμετείχε συμμετείχε το τμήμα Σχεδιασμού Βιομηχανικών Δικτύων και Μηχανολογικού Σχεδιασμού της ΕΡΓΟΠΡΑΞΙΣ ΑΤΕ ενώ υλοποιήθηκε υπό τη διοίκηση της Δ/ση Τεχνικών Υπηρεσιών του τομέα ΜΕΤΑΛΛΟΥΡΓΙΑΣ της ΜΥΤΙΛΗΝΑΙΟΣ ΑΕ.
Η ΕΡΓΟΠΡΑΞΙΣ ΑΤΕ ανέλαβε και εκτέλεσε την μελέτη των κάτωθι αντικειμένων:
- Μελέτη χωροθέτησης και εγκατάστασης νέου εξοπλισμού
- Μελέτη Υδραυλικών Δικτύων Διασύνδεσης και Μελέτη Στηριγμάτων Αυτών
- Μηχανολογικός Σχεδιασμός νέου εξοπλισμού (Αποστραγγιστήρας, μετρητικές δεξαμενές)
- Μελέτη αντιτριβικής επίστρωσης νέου και υφιστάμενου εξοπλισμού
- Μελέτη μεταλλικών κατασκευών

Πρόκειται για ειδικές κατασκευαστικές μελέτες που στα πλαίσια του έργου, η εκπόνησή τους πραγματοποιήθηκε σε συνεργασία με άλλους εξειδικευμένους μελετητές σε επιμέρους αντικείμενα, ενώ η συνολική τελική εγκατάσταση συντέθηκε και απεικονίστηκε σε τρισδιάστατο σχεδιαστικό περιβάλλον με την σύνθεση των επιμέρους αντικειμένων.
Οι ιδιαίτερες συνθήκες της εγκατάστασης επέβαλαν την χρήση μη τυπικών υλικών, όπως χαρακτηριστικά είναι ο σχεδιασμός των υδραυλικών δικτύων με εύκαμπτους πλαστικούς σωλήνες τύπου “performer” που εμφανίζουν υψηλή αντοχή σε ροή ρευστών με αυξημένη περιεκτικότητα πυριτίου και αντίστοιχα ο σχεδιασμός του μηχανολογικού εξοπλισμού με αντιτριβικά ελάσματα τύπου “hardox”.
3D Σχεδιασμός
Όλα τα αντικείμενα του έργου αναπτύχθηκαν σε τρισδιάστατο περιβάλλον ώστε να είναι δυνατή η σύνθεση των επιμέρους αντικειμένων και των εγκαταστάσεων του έργου καθώς και η συνολική προεπισκόπηση της τελικής εγκατάστασης.

Μελέτη Λεπτομερειών
Όλα τα προς μελέτη αντικείμενα αναπτύχθηκαν σε επίπεδο λεπτομερειών στα αντίστοιχα παραδοτέα σχέδια που περιείχαν όλη την απαιτούμενη πληροφορία για την κατασκευή του έργου.


